Dom jednorodzinny - Klasyczny

Lokalizacja: Koszalin 

Rodzaj inwestycji: Budynek mieszkalny jednorodzinny 

Konstrukcja: Tradycyjna murowana 

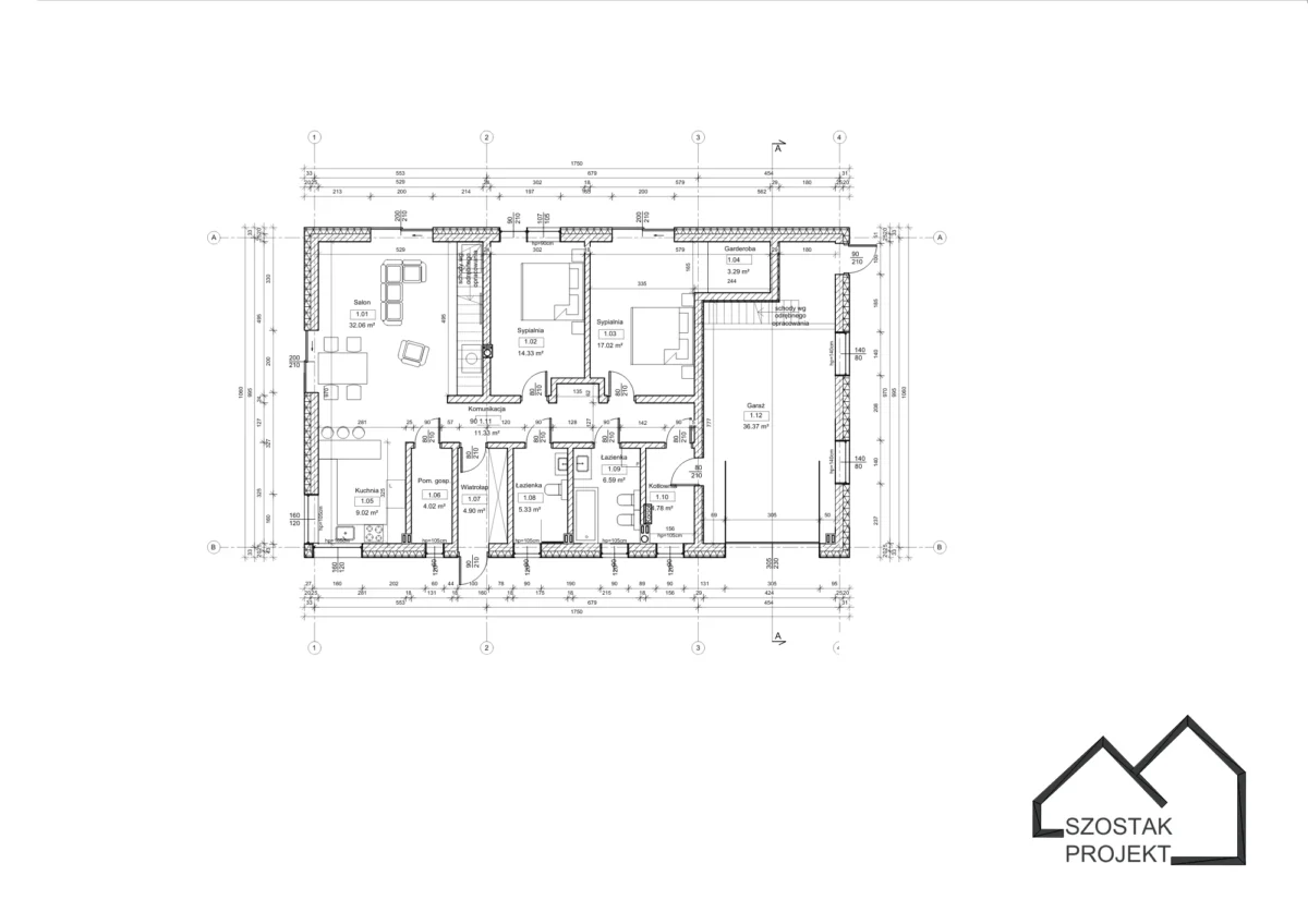
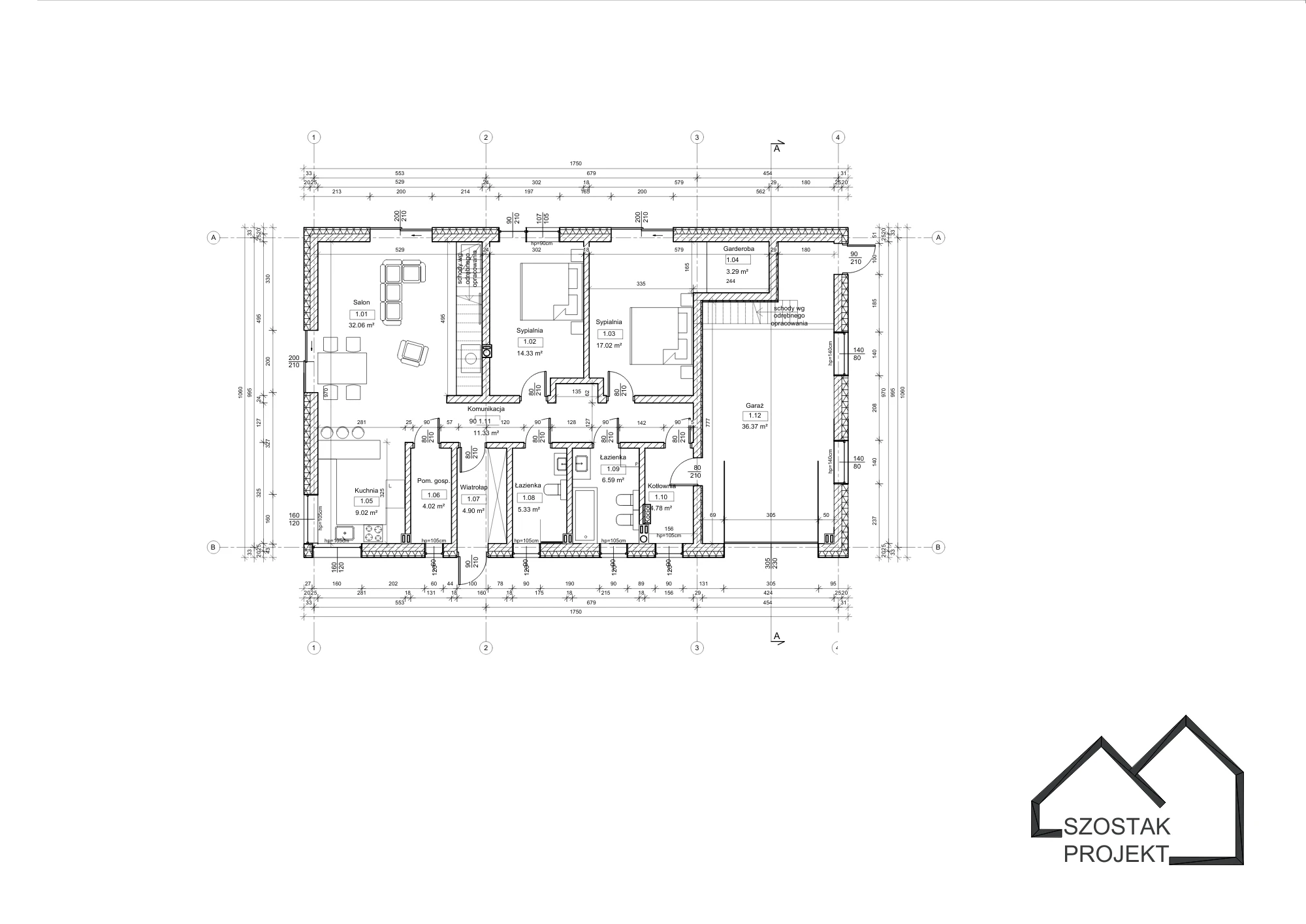
Parametry: 112,67m2 powierzchni użytkowej 

O projekcie: Dom parterowy utrzymany w klasycznej formie z nowoczesnymi akcentami. Jasna elewacja, drewniane detale i prosta bryła tworzą spójną, funkcjonalną przestrzeń o ponadczasowym charakterze. 

Rzut parteru
Rzut poddasza